En Venta
VENTA OPORTUNIDAD UN DORMITORIO CENTRICO - BALCON - AMENITIES - FINANCIACION!!
Código: 110133

Mendoza 1272, Rosario, Santa Fe, Argentina.

USD77.000

Departamento
Compartir esta Propiedad

Descripción de la Propiedad

EN VENTA - Mendoza 1272, entre Mitre y Entre Ríos, privilegiada zona Centro de la ciudad de Rosario. En su entorno encontramos el Sanatorio Delta y Universidades tales como la del Gran Rosario y la Tecnológica Nacional.

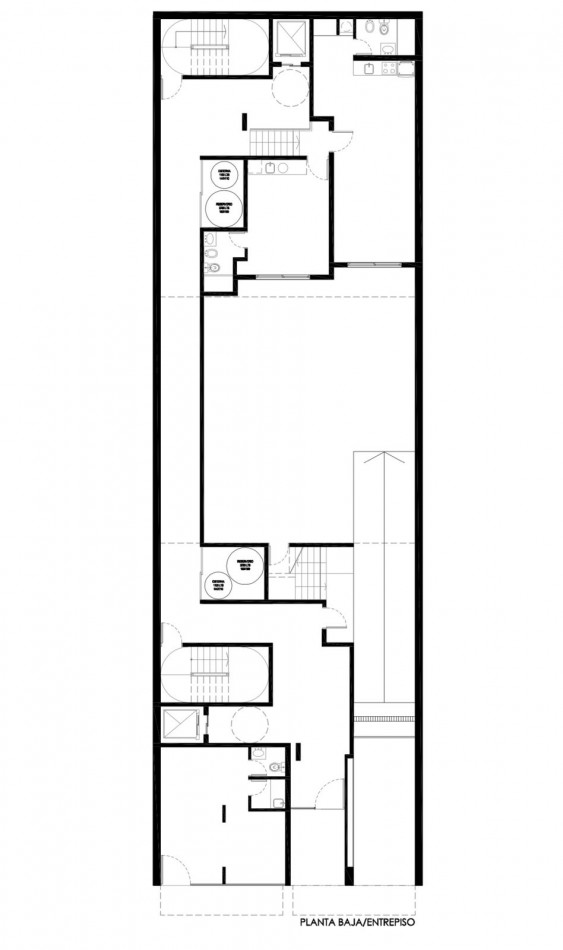
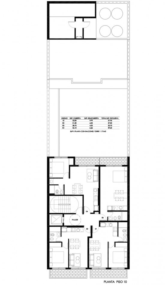
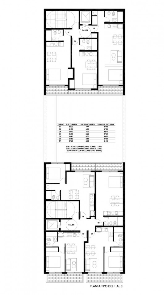
El proyecto esta compuesto por dos torres. Torre 1 de Pb y 10 pisos. Torre 2 de Pb y 8 pisos. POSESION 15 MESES.
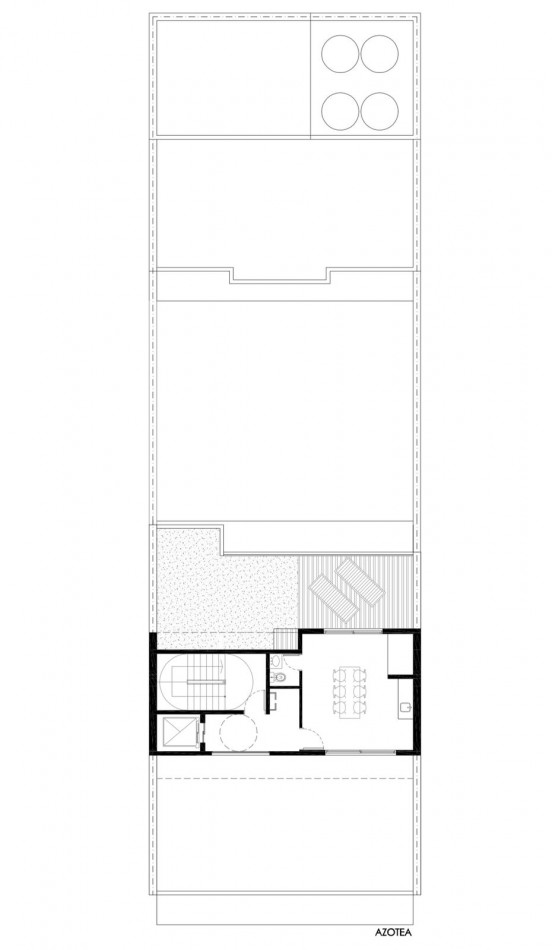
Amenities en azotea: deck, quincho con parrillero, solárium con duchas.
El edificio cuenta con cámaras de seguridad y alarma.


UNIDADES UN DORMITORIO, vista al frente o al interior del edificio.
Living comedor con salida al balcón corrido, cocina integrada. Un dormitorio con placard. Baño completo. Excelentes terminaciones.

AMPLIA FINANCIACION!
CONSULTAR DISPONIBILIDAD.



CI Mabel Gardiol - Mat N° 1844

Mas detalles
  • Balcon
  • Parrilla
  • Portones eléctricos
  • Seguridad 24hs.
  • Luminoso
  • Solarium
  • Servicios Compartidos
  • Agua Corriente
  • Cloacas
  • Electricidad
  • Red Gas Natural
  • Cocina Amueblada
  • Nicho para Gas